
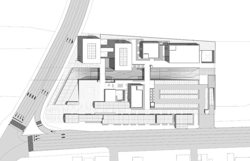
우리가 제안하는 미술관은 대지 주변의 맥락들과 연속되어 흐를 수 있는 미술관이다. 동서통합 남도 순례길의 일부로써 계획한 미술관은 길이 되어 흐르고, 그 위에 미술과 사람의 풍경이 조화롭게 펼쳐진다. 폐선 부지의 흔적을 담은 길 위의 풍경은 새것과 옛 것이 조화되어 하나의 랜드마크로 탄생한다.






Type : Art Center
Client : Jullanamdo
Location : Gwangyangsi, Jullanamdo, Korea
Size : 12,569.66 m2
Period : 2016
Status : Competition_Participation



댓글