
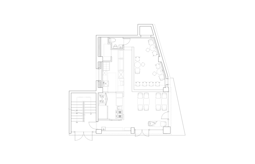
이 곳은 뉴욕 현지에서 맛볼 수 있는 베이글을 처음부터 끝까지 수제로만 제조하여 판매하는 곳이다. 정성과 시간을 들여 나오는 베이글 하나하나가 더욱 소중하게 느껴지게 할 수 있는 방법은 무엇인가? 이에 대한 우리의 해결 방법은 베이글을 제조하는 공장을 만드는 것이었다. 기존에 붙어있던 외벽의 마감을 떼어내고 건물의 순수 골조를 드러내어서 수제공장이라는 이미지 메이킹을 하였고 빵이 조제되는 주방을 컨테이너 박스로 제작하고 내외부의 경계가 되는 모든 벽면을 투명한 유리로 디자인 하여 빵을 먹으러 오는 이용객이 실내에 있지만 서촌의 한 거리에 앉아서 컨테이너 박스에서 파는 수제 베이글을 먹는 느낌을 받도록 하였다. 내부 객장에도 외벽에서 흔히 볼 수 있는 마감재들을 사용하여 내부와 외부의 경계를 모호하게 디자인하였다. 베이글을 생산해 내는 컨테이너의 강조, 가리기 보다는 적극적으로 드러내는 조리과정, 순수한 물성의 표현, 내외부 경계 흐리기 등이 이 프로젝트의 핵심 키워드가 된다.













Type : Commercial
Client : I am Bagel
Location : Nusangdong, Jongrogu, Seoul, Korea
Size : 69.86 m2
Period : 2014
Status : Completed



댓글