
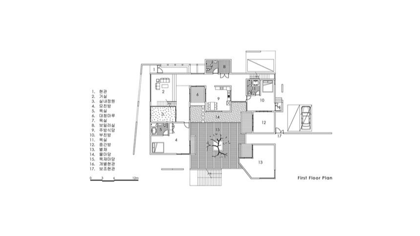
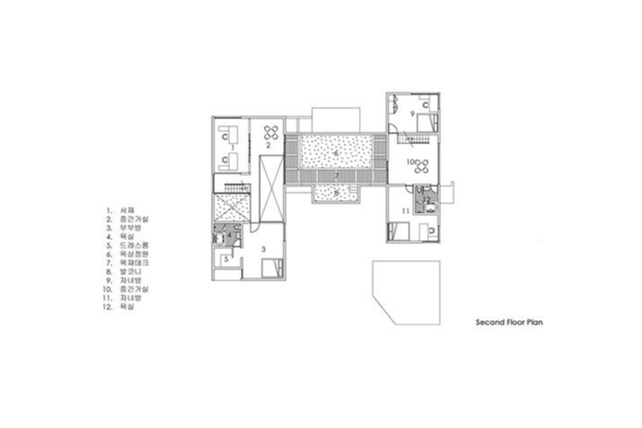
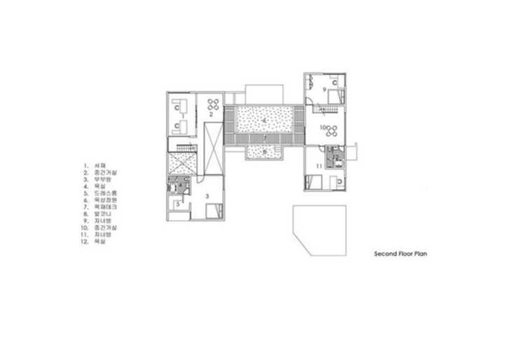
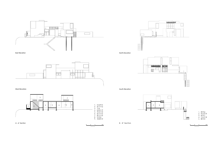
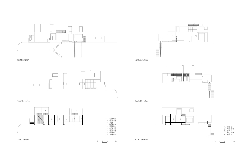
도로변 모퉁이의 작은 언덕부지인 이곳은 도시와 자연이 만나는 경계에 있다. 사이트 위에서의 풍광 또한 받아들이고 싶은 곳과 멀리하고 싶은 풍광들이 혼재해 있다. 집은 기능을 넘어 개인의 향유의 공간임을 기본 베이스로 생각한 우리의 제안은 픽쳐레스크 기법이었다. 이 집의 특징은 두 개의 매스와 매스를 잇는 브릿지, 매스 간의 영역을 나누는 그린의 공간, 그리고 전체를 감싸는 담장에 있다. 이러한 건축적 장치들이 모여 공간 공간의 시점에서 다양한 경관을 연출하게 된다. 외부의 멀리하고 싶은 풍경은 막아주고 받아들이고 싶은 풍경에서는 적극적으로 열린다. 내부의 그린의 공간들은 외부에서 채우지 못하는 내부의 풍경이 되어 집 전체를 풍경에 감싸인 집으로 만든다. 계획된 동선에 따라서 거주자가 체험하게 되는 다양한 풍경들은 거주자가 집을 향유하는 가장 적극적인 방법이었다. 내 외부의 경계에서 한국 전통의 민가에서 사용되는 대청과 툇마루 그리고 사랑방의 개념을 차용하여 서정적 감성을 더하였다. 지형과 주변의 풍경의 적극적인 조화가 이 프로젝트가 주안점이다.

















Type : Housing
Client : Yungyu Park
Location : Sambangdong, Gimhaesi, Kyungsangnamdo, Korea
Size : 213.72 m2
Period : 2012
Status : Proposal



댓글